5710 Brookwood Rd, Indianapolis, IN 46226
Toggle Navigation
Images
Videos
Floor Plans
3D Tour
Map
5710 Brookwood Rd
Indianapolis, IN 46226
Scroll to Content
Images
Slideshow
Photo Grid
Hide
Previous
Next
Show more
Videos
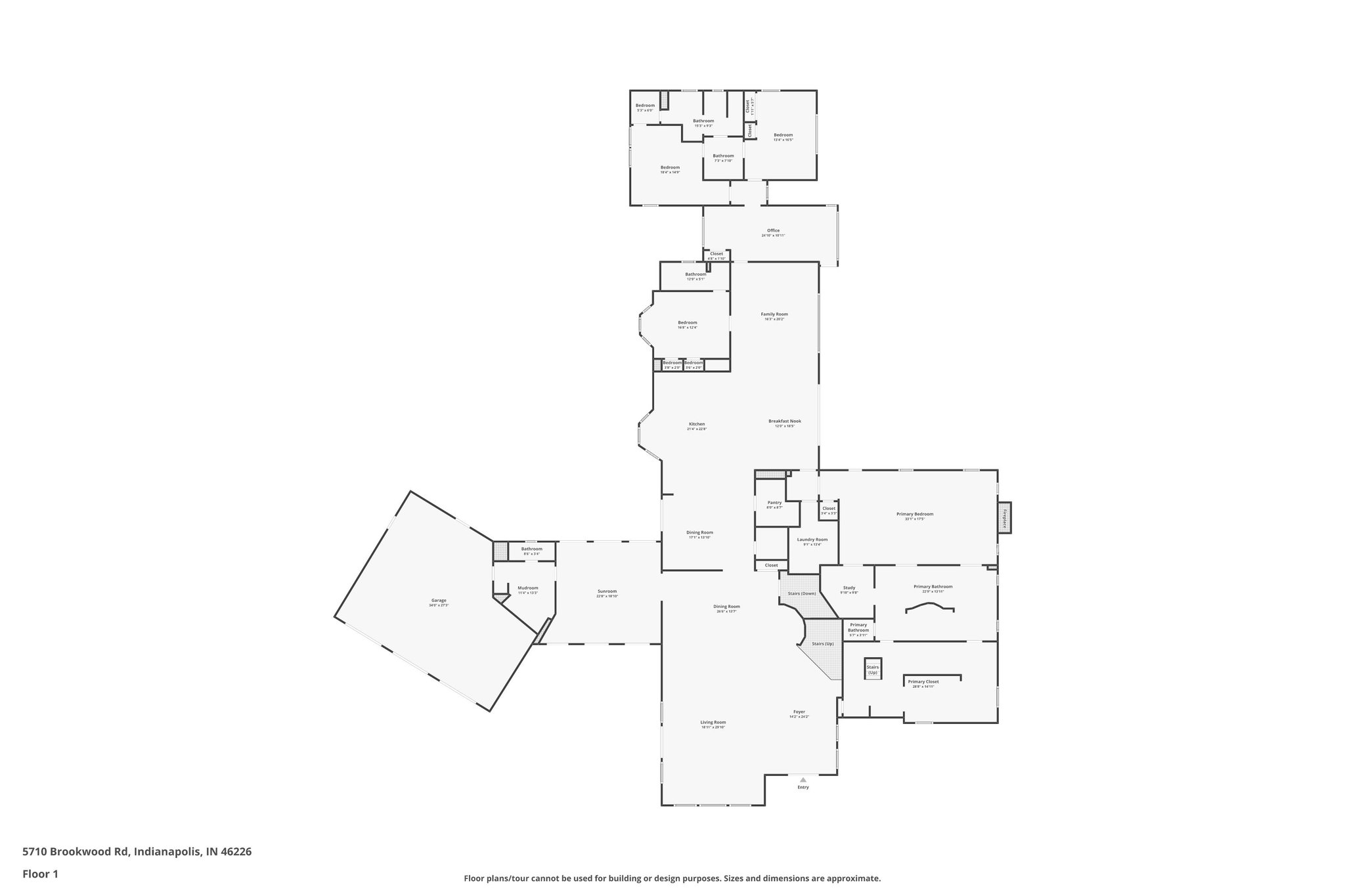
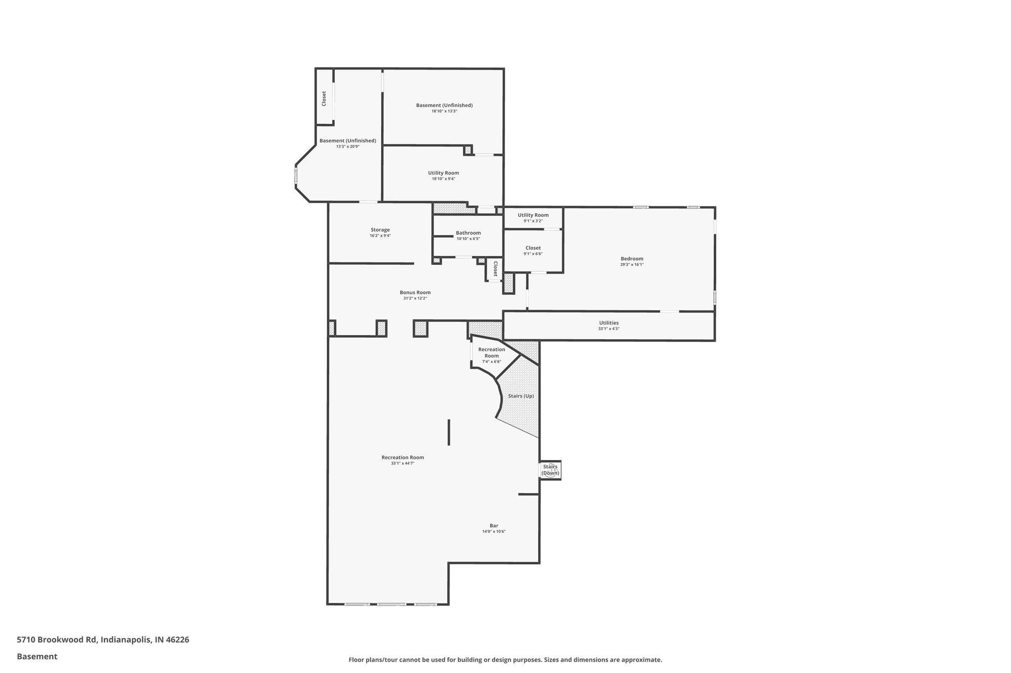
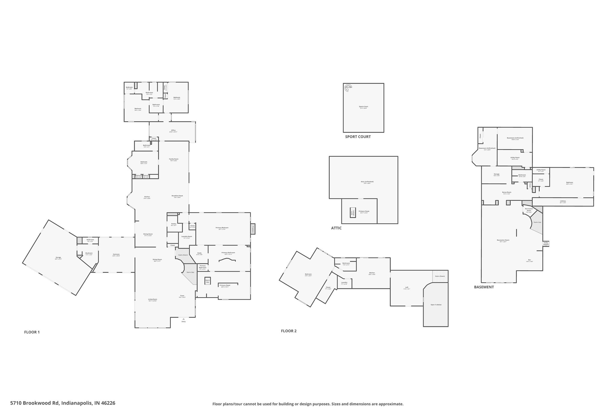
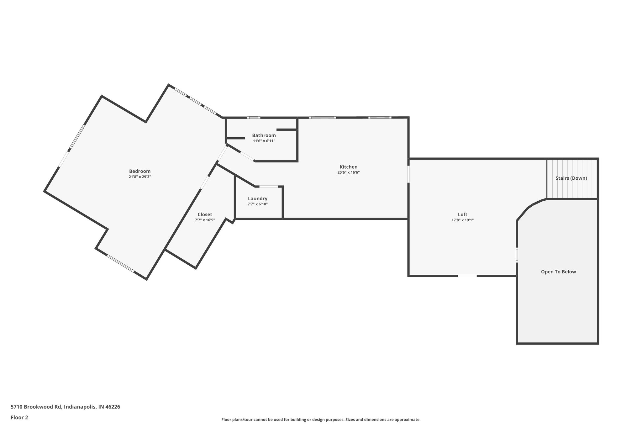
Floor Plans
Slideshow
Photo Grid
Hide
Previous
Next
3D Tour