962 Workington Cir, Westfield, IN 46074
Toggle Navigation
Images
Videos
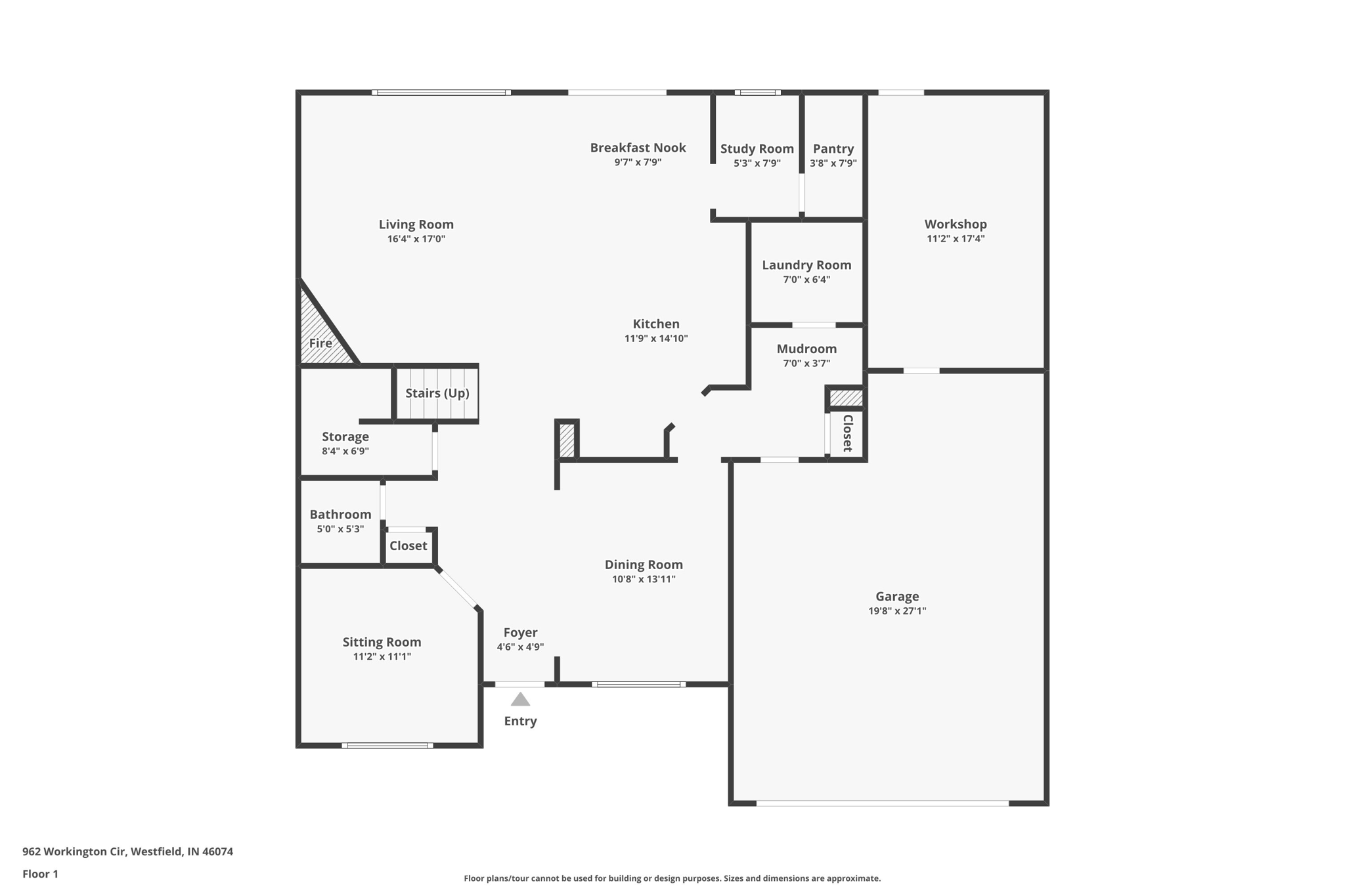
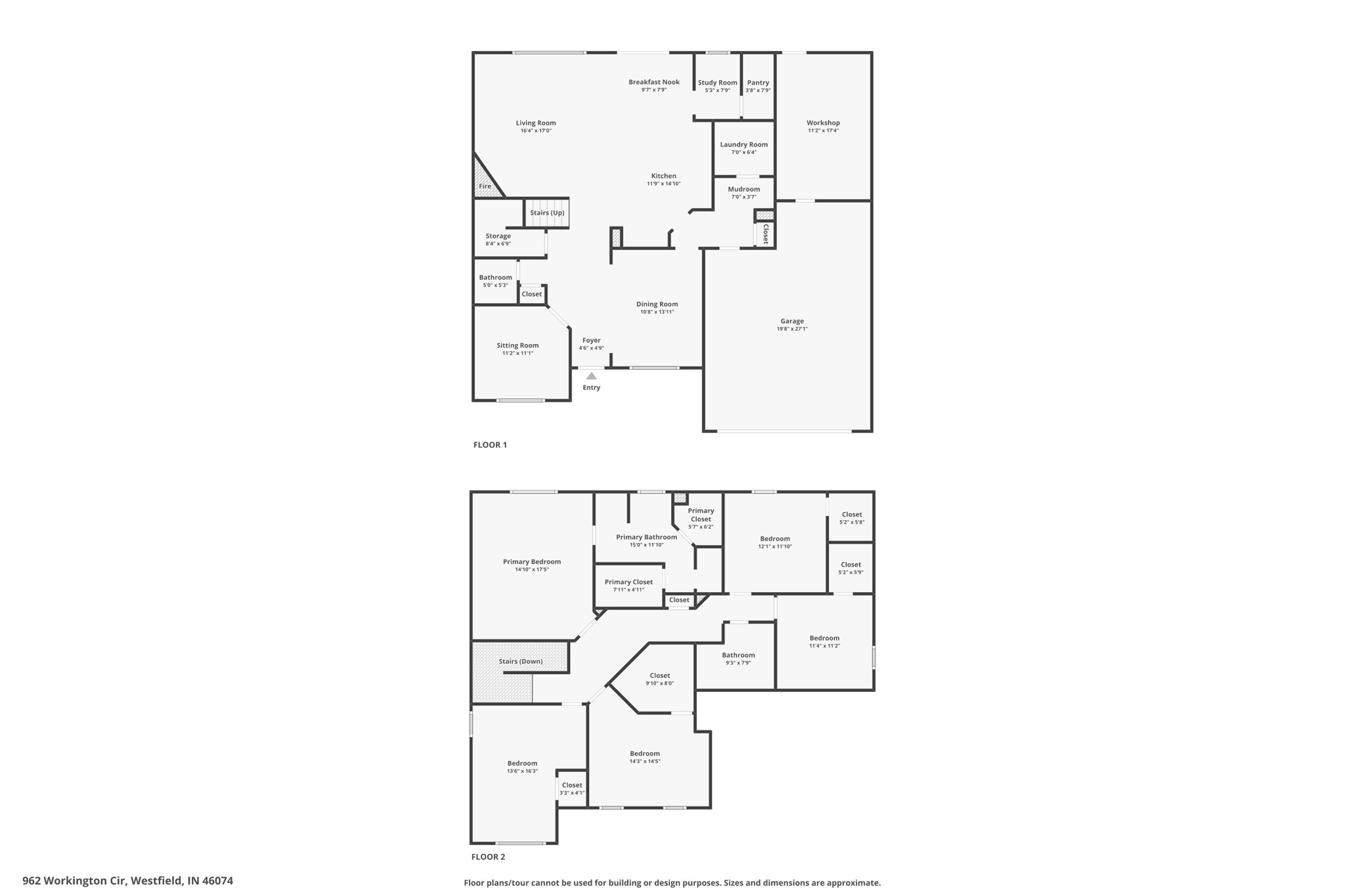
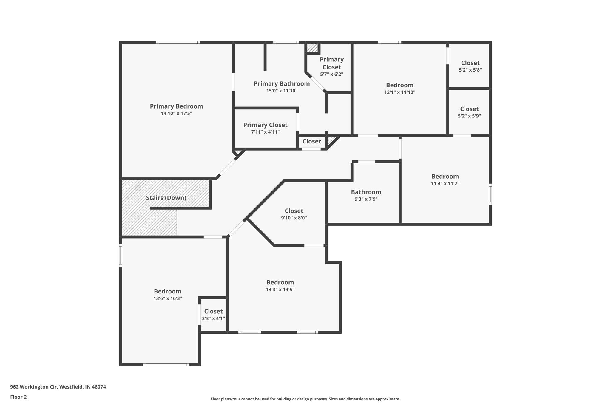
Floor Plans
3D Tour
Map
962 Workington Cir
Westfield, IN 46074
Scroll to Content
Images
Slideshow
Photo Grid
Hide
Previous
Next
Show more
Videos
Content Coming Soon
Floor Plans
Slideshow
Photo Grid
Hide
Previous
Next
3D Tour